Home
Profil
Projekte
Neubau
Umbau
Kommunalbau
wettbewerb
Kontakt
haus der natur
bonn
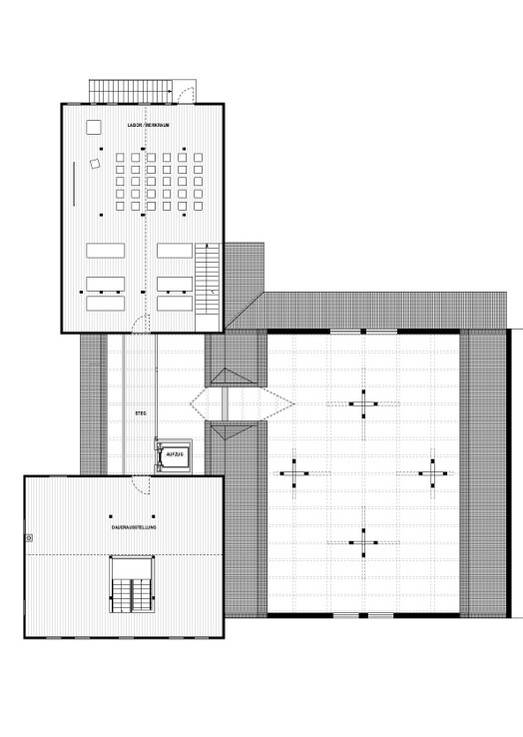
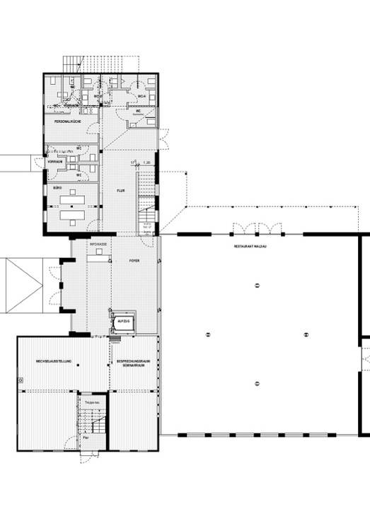
umbau des museums -haus der natur- bonn
Zurück zur Übersicht