geteilte freude doppelte freude bonn-beuel
doppelhaus in bonn-beuel (2008)












das projekt entstand aus einem kleinen wettbewerb den die befreundeten bauherren ausgelobt hatten.
unser entwurf traf die erwartungen und wurde realisiert.
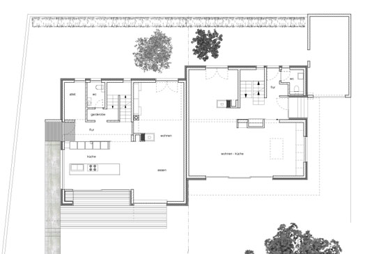
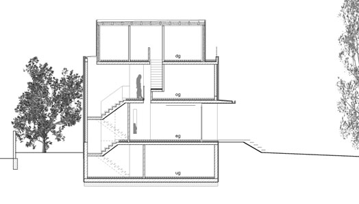
aufgrund der besonderen städtebaulichen ecksituation war es möglich das gebäudeensemble zweigeschossig mit flachdach und staffelgeschoss zu planen.
die rheinnähe und die damit verbundene hochwassergefahr bestimmten die ca. ein meter hohe anhebung des erdgeschosses. die gartenflächen wurden teilweise angeschüttet um den direkten innen-außen bezug nicht zu verlieren.
die erdgeschosse wurden als fließende raumfolgen von flur, küche essen und bad geplant. einbauten wie küche und kamin sind weitere raumbildende elemente.
die erschließung der obergeschosse erfolgt über unterschiedliche treppen durch einen verbindenden luftraum.
Im 1. obergeschoss befinden sich kinderzimmer, bäder und gästezimmer im dachgeschoss neben schlafzimmer und ankleide noch bad und sauna.
alle einbauten wie badmöbel, waschtische, ankleiden und schränke wurden individuell von uns geplant und detailiert.
das kellergeschoss ist als „weiße wanne“ ausgebildet, die beheizung und warmwasserversorgung erfolgt über erdwärmepumpen.



