Home
Profil
Projekte
Neubau
Umbau
Kommunalbau
wettbewerb
Kontakt
huckepack
wachtberg
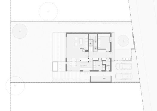
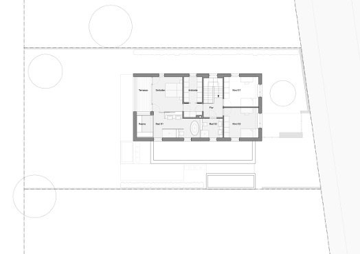
einfamilienhaus in wachtberg (2017-2018)
Zurück zur Übersicht