Home
Profil
Projekte
Neubau
Umbau
Kommunalbau
wettbewerb
Kontakt
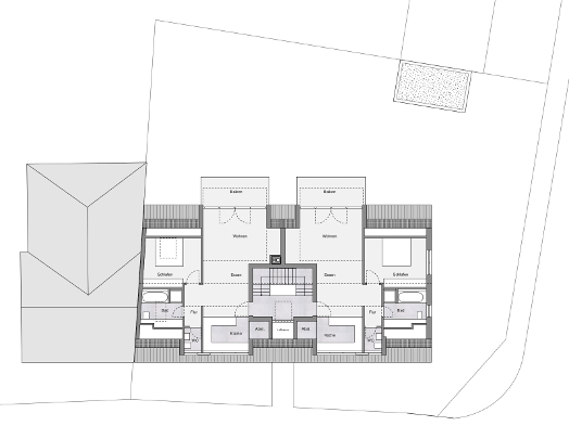
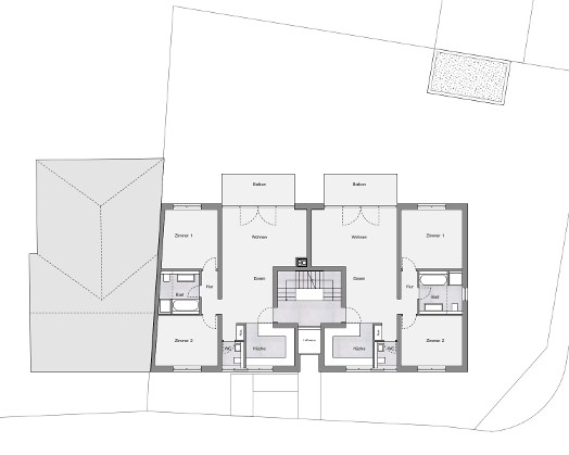
mehrfamilienhaus
bonn
wohnen am siebengebirge (2017)
Zurück zur Übersicht