stein auf stein bad bodendorf
einfamilienhaus in bad bodendorf (2006)









das haus liegt am waldrand in einem seitental des ahrtals.
die vorhandene hanglage war entwurfsprägend und begründet den split-level als gebäudetypus.
das äußere erscheinungbild ist geprägt durch ziegelmauerwerk und holz,
die verwendung traditioneller materialien in moderner architektursprache.
im inneren entstehen durch den halbgeschossigen versatz, blickbeziehungen und raumgefüge die das gebäude offen und für bewohner und besucher begreifbar machen.
in den unteren ebenen befinden sich die allgemein genutzten räume, küche/essen/wohnen, mit direkt angeschlossenen außenflächen, terrasse-garten und hof.
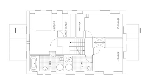
im gebäudemittelteil sind 3 schlafzimmer und 2 bäder eingeplant.
im dachraum beendet ein verglastes giebelzimmer mit blick ins ahrtal die fliessende raumentwicklung des hauses.
der innenausbau ist in hochwertiger handwerklicher arbeit ausgeführt, geölte massive eiche und weiß gestrichene/lackierte flächen sind prägende materialien des hauses.





