Home
Profil
Projekte
Neubau
Umbau
Kommunalbau
wettbewerb
Kontakt
talblick
ittenbach
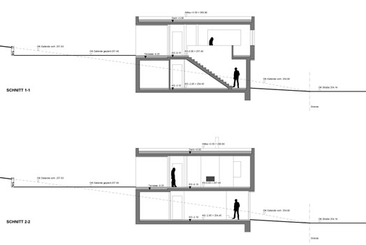
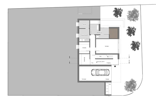
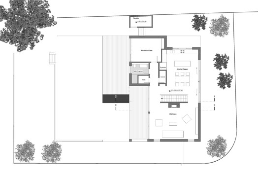
einfamilienhaus in ittenbach (2013)
Zurück zur Übersicht