unter der zeder bonn-ippendorf
einfamilienhaus in bonn-ippendorf (2012)
















herausforderung war es dem wunsch der bauherrin gerecht zu werden und die 30meter hohe zeder, die mittig auf dem grundstück steht und das parkähnliche grundstück prägt, zu erhalten.
die 2. große herausforderung ein haus ohne keller für 5 personen mit gästezimmer und einliegerwohnung auf 300qm kostengünstig zu planen.
entstanden ist aus diesen 3 randbedingungen ein gebäudeensemble, welches sich mit einem rückwärtigen annexbauteil um die zentrale zeder entwickelt.
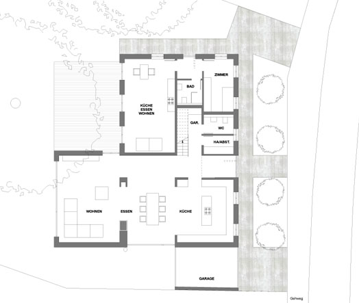
die fassadenteilung an straßen- und gartenseite folgt einem klaren raster und entwickelt sich aus dem gebäudeinneren.
die einfachheit des entwurfskonzeptes war grundvorraussetzung das große bauvolumen wirtschaftlich umsetzten zu können.
der wohnraum schiebt sich in der raumfolge aus küche und essraum in richtung garten und öffnet sich dort mit einem großen panoramaschiebefenster.
ein gemauerter kaminofen bildet eine räumliche trennung zwischen ess- und wohnbereich.
im obergeschoss befinden sich alle kinder- und gästezimer mit 2 bädern und einer terrasse.
die räume im staffelgeschoss werden geprägt durch die große dachterrasse und der direkt erlebaren mächtigen zedernkrone.
die materialität im haus wird geprägt durch glatt verputzte weiße wände, einem holzdiehlenboden aus eiche und einer cremefabenen fliese.
die beheizung und warmwassererzeugung erfolgt nach dem prinzip der kraft-wärme-kopplung mit einem mini-blockheizkraftwerk
3. platz: "energieeffizienz-preis 2013" der stadtwerke bonn






